Inicio
Portafolio
Servicios
Contacto
|
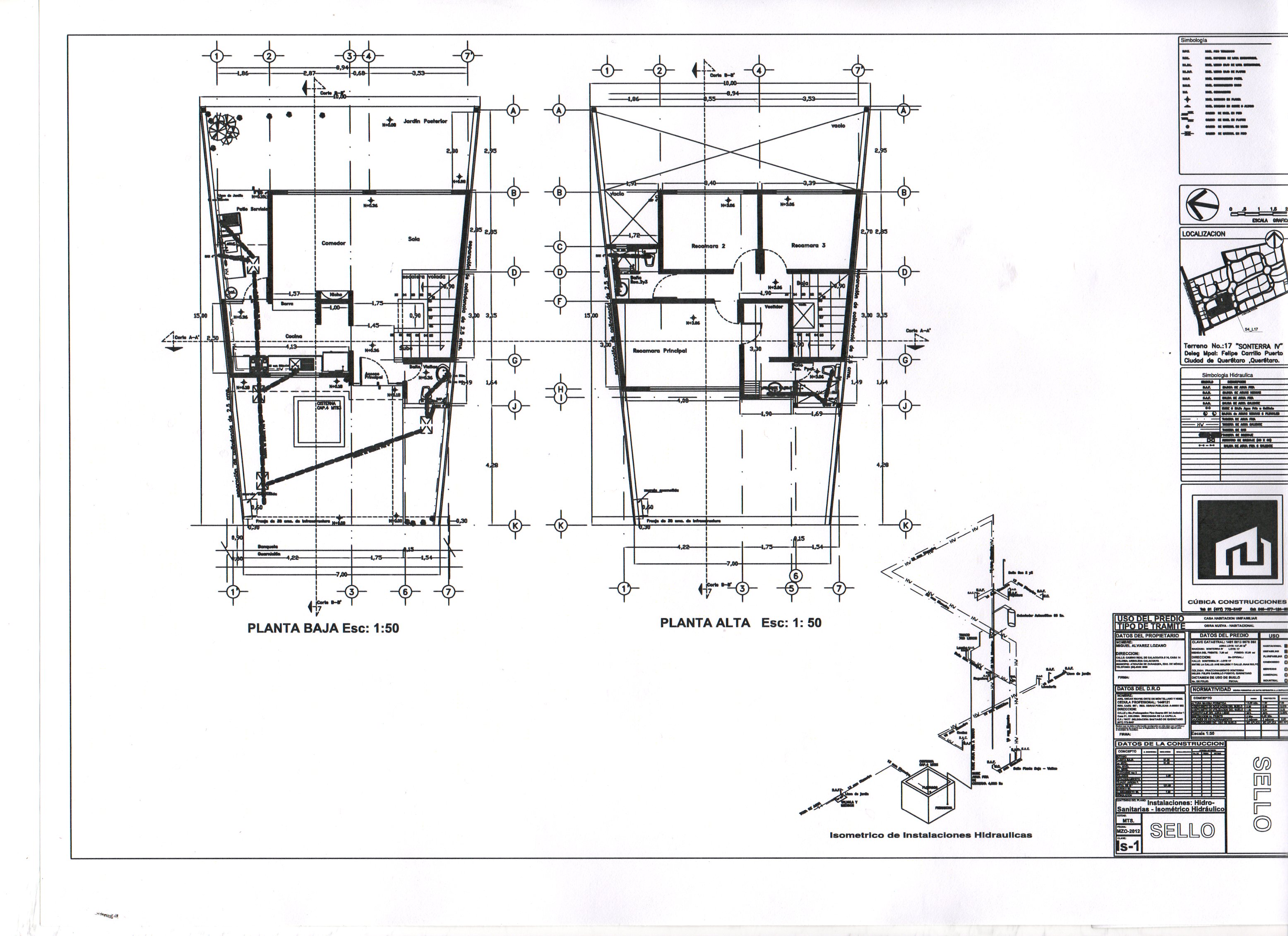
Proyecto y construcción de casa habitación en dos plantas, Sonterra, Qro.
Casa habitación en Sonterra IV, Qro.
Metros cuadrados terreno:
127.50m
2
Metros de construcción:
121m
2