Hotel Boutique.- “CASA BUENAVENTURA”

Ubicación: Calle 33 No. 451E, 42x44, Colonia Jesus Carranza CP: 97109 Mérida Yucatán
Estilo: Casa antigua estilo Yucateca, acondicionada con acabados contemporáneos.
Proyecto: 100%
Construcción: 100%
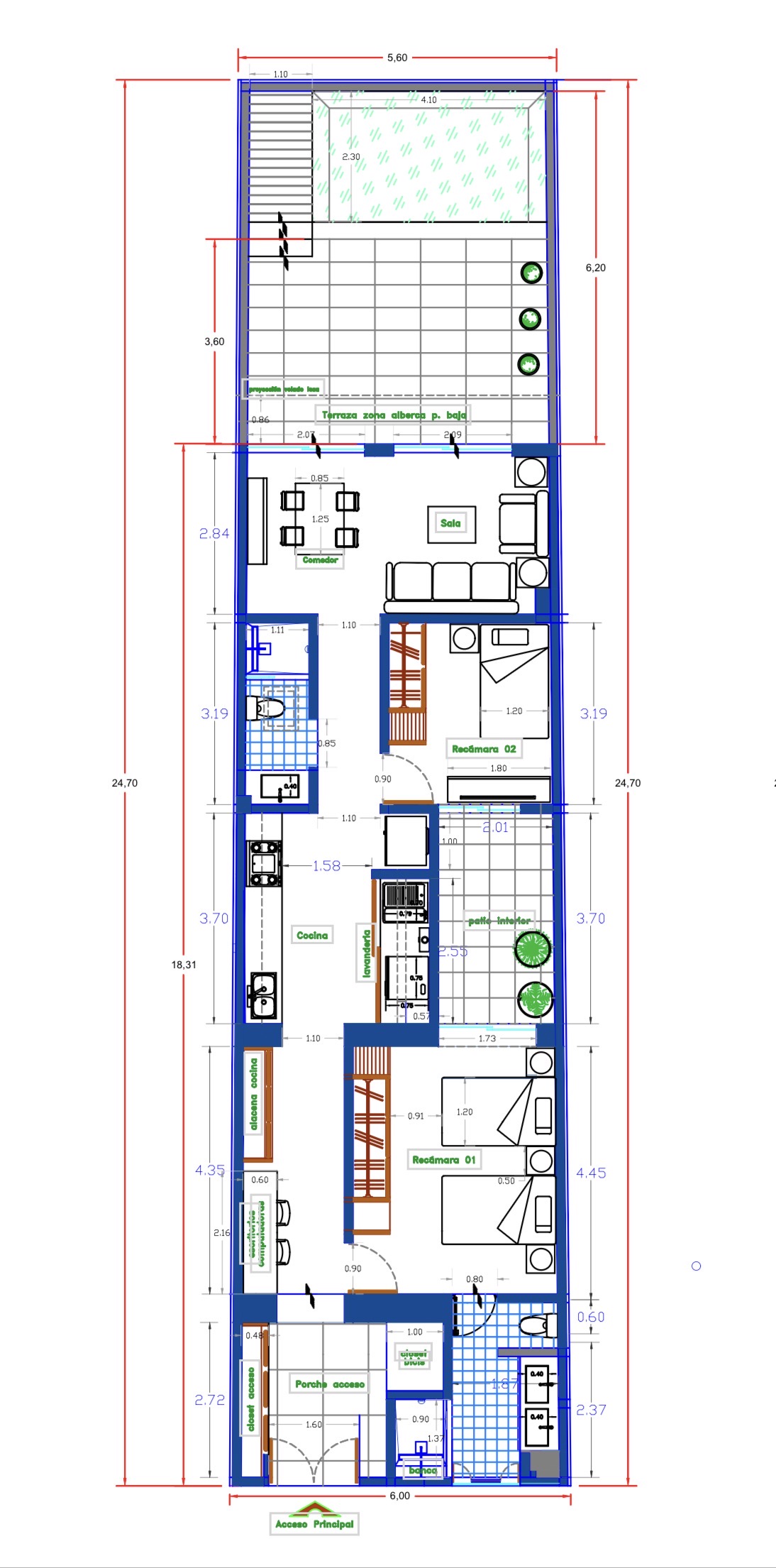
Metros cuadrados terreno: 147 m² Metros cuadrados construcción: 180 m²
Año de ejecución: 2025
Remodelaciones, modificaciones y ampliaciones, de áreas públicas y privadas.
Terrazas y Piscina